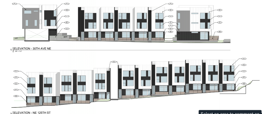
Townhome complex with 43 units.
Will become available in fall 2017.
Unit heated space: 1350 to 1550 square feet.Bedrooms: 2-3Bathrooms: 2.5-320 garages and 20 pads
Mike Nelson - (206) 459-3708
3500 NW 125th St Seattle, WA 98125
4-plex – 1,082 heated sqft 2 Bedrooms 2 Bathrooms NO PARKING Greg Stamolis (206)789-7700
Triplex – Units C,D&E3 Bedrooms2.5 BathroomsHeated: 1,320 SF/UnitDeck: 361 SF/Unit Bryan Loebloe@windermere.com206.522.9600Designed By: Cleave Architecture + Design
5 Rowhouse 2 Bedrooms 2 Bathrooms Heated: 1,189 SF/Unit A, D, E Heated: 1,046 SF/Unit B, C Dustin Van WyckDustin@windermere.com Designed ..
Town House 1&2 2 Bedrooms 2.5 Bathrooms Garage: 227 SF Roof Deck: 443 SF Heated : 1,512 SF/Unit Row house ..
Town House 1 & 2 2 Bedrooms 2.5 Bathrooms Heated: 1,417 SF/Unit Roof Deck: 355 SF Town House 3 2 Bedrooms ..
8 RowHouse Unit 1, 2, 3, & 43 Bedrooms 2 Bathrooms Heated: 1,332 SF/UnitUnit5, 6, 7 & 8 2 Bedrooms 2.5 ..
Bedrooms: 3Bathrooms: 2.5Heated: 1743 sf Bedrooms: 3Bathrooms: 2.5Heated: 1743 sf Bedrooms: 3Bathrooms: 2.5Heated: 1660 sf
Lot Area: 7,674 sf Unit 1ABedrooms: 2 + officeBathrooms: 2.25Heated: 1332 sfGarage: 222 sfTotal: 1554 sfRooof deck: 427 sfUnit 1BBedrooms: ..
Unit A – 1768 sf 3 Bedrooms 3 BathroomsUnit B – 1768 sf 3 Bedrooms 3 BathroomsUnit C – 1768 ..
Unit A – 1212 sf 3 Bedrooms3.5 Bathrooms 1 GarageUnit B – 1212 sf 3 Bedrooms3.5 Bathrooms 1 Garage Med Shariat – (206) ..
Bedrooms: 2-3 / unitBathrooms: 2.5 / unitHeated: 1519 – unit A 1580 – ..
Unit 1 – 1445.5 sf 2 Bedrooms 2 BathroomsUnit 2 – 1264.4 sf 2 Bedrooms 2 Bathrooms Bill ReidPersonal: (206) ..
Unit A – 1305 sf 2 Bedrooms 2 Bathrooms 1 GarageUnit B – 1305 sf 2 Bedrooms 2 Bathrooms 1 ..
Modern 6-unit townhome. Larry Wilcynski – (206) 227- 1725
Three 2-unit townhomes in West Seattle. Sunny S. Tumber & Tim C. Bower(206) 271-0695
Two 2-unit townhomes: Bedrooms: 2Bathrooms: 3.5Roof deck: 412 sf1-car garageFAR: 1486 sf Bedrooms: 3Bathrooms: 3.5Office/media roomRoof deck: 412 sf1 surface parking spaceFAR: 1486 sf
1726 NW 64th St Seattle, WA 98107 3 units each with a parking pad. Unit A – ..
Greg Stamolis – (206) 789-8227
3 units each with a garage. John Catlow – (206) 380-7799
Two 2-unit townhomes:6508 34th Ave SW Seattle, WA 98126and6512 34th Ave SW Seattle, WA 98126 Beautiful, modern, lightly-lived-in townhomes just outside ..
Two 2-unit townhomes:6506 34th Ave SW Seattle, WA 98126and6510 34th Ave SW Seattle, WA 98126 Beautiful, modern, lightly-lived-in townhomes just outside ..
1131 21st Ave S Seattle, WA 98144
2-unit townhomes:1519 14th Ave S Seattle, WA 98144and1521 14th Ave S Seattle, WA 98144
Beautiful back 2-unit townhome with an open floor plan in the desirable Fremont district.
4-unit townhome in West Seattle.3 bedrooms.3.5 bathrooms.Garage for each unit.
3-unit townhome:3028 Linden Ave N Seattle, WA 981033030 Linden Ave N Seattle, WA 98103
2-unit townhomes.
Single family unit:2833 SW Yancy St Seattle, WA 981262-unit townhome:2831 SW Yancy St Seattle, WA 98126
2 townhomes with 2 units each.Located at:2316 SW Hudson St Seattle, WA 98106and2322 SW Hudson St Seattle, WA 98106
1461 sf and 1543.6 sf
HOUSE – 2019 sf 3 Bedrooms 3 BathroomsDUPLEXUnit A – 1556 sf 3 Bedrooms 3 BathroomsUnit B – 1556 sf ..
3 units, each with a garage.
5 units each with a parking pad.New modern rowhouses with 4-star Green Build rating with green features including tankless H20 ..
Roof top decks, stainless appliances, designer soft close cabinets, slab counters, hardwood floors, fireplaces, tons of natural light, private fenced ..
6 units with 3 garages and 3 pads.Unit A – 1,524.8 sf Unit B – 1,990.7 sf Unit C – ..
UNIT A3 Bedrooms 1.5 Bathrooms Heated: 1258.5 sf Unheated: 262 sf Total: 1520.5 sfUNIT B3 Bedrooms 2.5 Bathrooms Heated: 1304 sf Total: 1304 ..
1 of 3 New modern 3 bedroom homes from Greenbuild Development! Located in Madison Valley with a walkscore of 82 ..
UNITS A-CBedrooms: 3/unitBedrooms: 2.5/unitHeated: 1507 sf/unitUNIT DBedrooms: 2Bedrooms: 2.5Heated: 1508.5 sfUnheated: 224 sf
4 units with 2 garages and 2 pads.Heated space varies from 1081 to 1238 sq.ft. 1st Floor – 474 sq ..
6 units.1650 sq. ft.Each with 3 bedrooms, 3.5 bathrooms and a garage.1310 E Marion St Seattle, WA 98122and1311 E Marion St ..
4 units.Each with 3 bedrooms, 2.5 bathrooms and a garage.